For more information regarding the value of a property, please contact us for a free consultation.
124 Linzi Way Paris, KY 40361
SOLD DATE : 07/18/2025Want to know what your home might be worth? Contact us for a FREE valuation!

Our team is ready to help you sell your home for the highest possible price ASAP
Key Details
Sold Price $371,379
Property Type Single Family Home
Sub Type Single Family Residence
Listing Status Sold
Purchase Type For Sale
Square Footage 2,459 sqft
Price per Sqft $151
Subdivision Bourbon Oaks
MLS Listing ID 24023522
Sold Date 07/18/25
Bedrooms 4
Full Baths 3
Year Built 2024
Lot Size 6,390 Sqft
Acres 0.15
Property Sub-Type Single Family Residence
Property Description
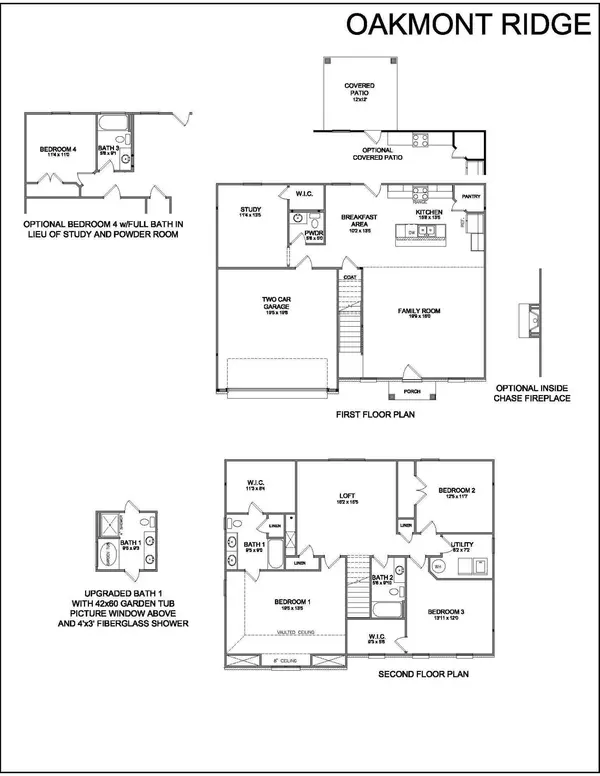
The Oakmont Ridge, part of the Trend Collection by Ball Homes, is a spacious two-story plan with a bedroom and full bath on the first floor. The large family room is open to the kitchen which makes this plan ideal for entertaining. Kitchen features include an island design, stainless steel appliances (microwave, dishwasher, gas range, refrigerator), sunny breakfast area, lots of cabinet space, and a walk-in corner pantry. Enjoy a covered 12x12 side patio.
The upstairs primary bedroom suite has a vaulted ceiling and a 60x34 fiberglass shower w/75' bypass clear glass door, linen closet, double bowl vanity, and tub/shower combination. Two additional upstairs bedrooms, utility room, and a large loft for gathering complete the second floor. Exterior features include a hip roof design and covered front entry.
71BX (Mid-July close date as of 6/5/25)
Location
State KY
County Bourbon
Interior
Interior Features Walk-In Closet(s)
Heating Forced Air, Zoned
Cooling Electric, Zoned
Flooring Carpet, Other
Laundry Electric Dryer Hookup, Washer Hookup
Exterior
Parking Features Attached Garage, Driveway, Garage Door Opener
Garage Spaces 2.0
View Y/N Y
View Neighborhood
Roof Type Dimensional Style
Handicap Access No
Private Pool No
Building
Story Two
Foundation Slab
Sewer Public Sewer
Level or Stories Two
New Construction Yes
Schools
Elementary Schools Bourbon Central
Middle Schools Bourbon Co
High Schools Bourbon Co
Read Less

GET MORE INFORMATION




